KLIDNÉ MÍSTO PRO VÁŠ ŽIVOT
MÍSTO PRO VAŠE KLIDNÉ BYDLENÍ
Klidné bydlení v přírodě s výbornou dostupností do Prahy i Neratovic
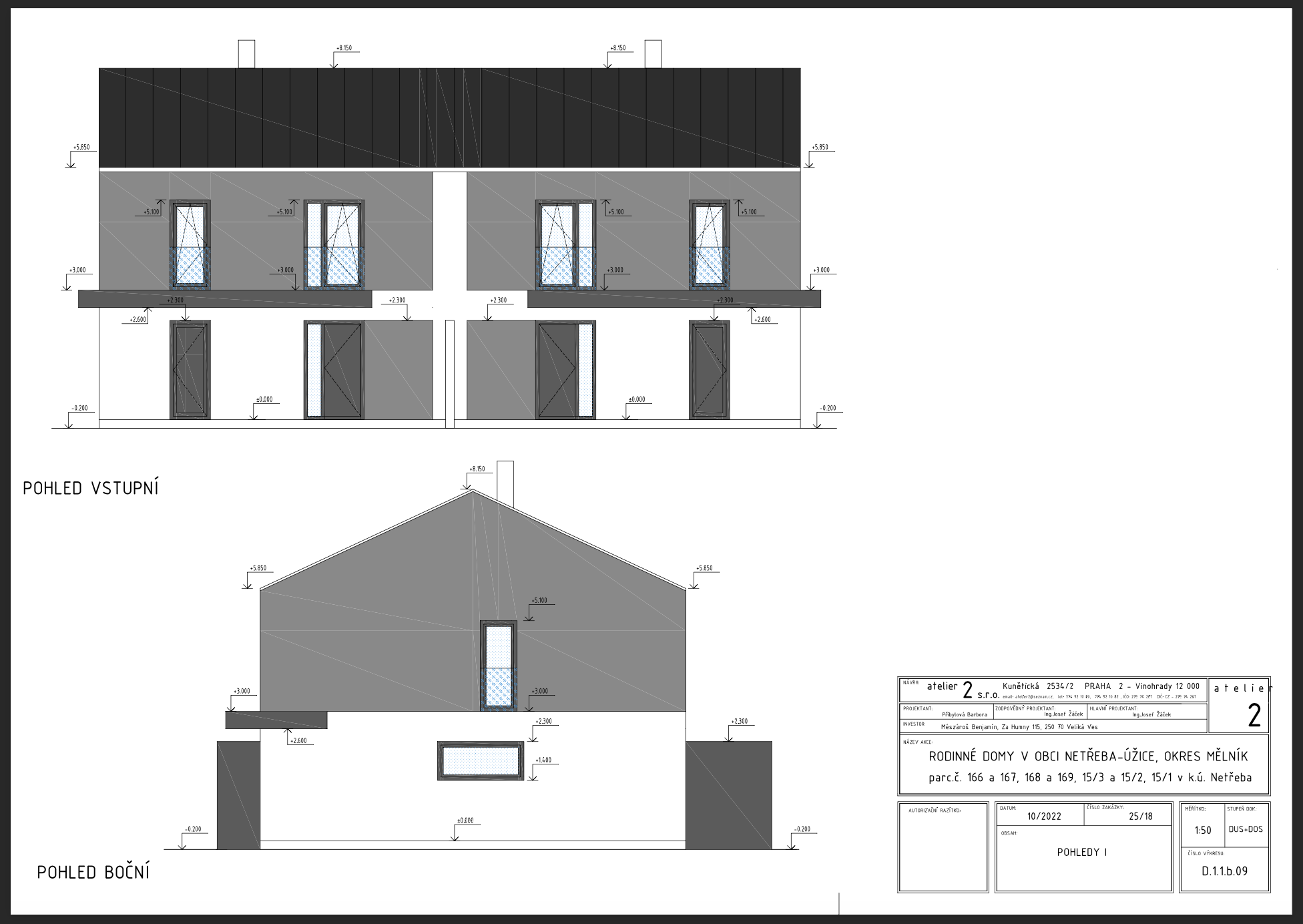
Jedná se o moderní bytovou jednotku o dispozici 4+kk ve dvoj domě, rozloženou do dvou podlaží (1.NP a 2.NP) s celkovou podlahovou plochou 126 m² a vlastní zahradou o výměře cca 246 m².
Projekt zahrnuje výstavbu celkem tří dvoj domů, které jsou aktuálně ve fázi dokončování hrubé stavby a interiérů prodej bude uskutečněn jako RD s číslem popisným a vlastní zahradou.Díky tomu máte jedinečnou možnost ovlivnit finální podobu domu dle vlastních představ a výběr polohy domu.
Dominantou domu je prostorný obývací pokoj s kuchyňským koutem a přímým vstupem na terasu a zahradu. V přízemí dále naleznete technické zázemí, komoru a další praktické místnosti. V patře jsou umístěny ložnice, pracovna a koupelna, což zajišťuje komfortní rodinné bydlení.
Dům je stavěn z kvalitních materiálů
– zdivo porotherm, samozřejmostí je podlahové vytápění a moderní dispoziční řešení.
– obložkové interiérové dveře kvalitní obklady, dlažby a moderní podlahové krytiny
Velkou výhodou je možnost výběru dekorů (obklady, dlažby, podlahy)
úprav dle vlastních požadavků dokončení domu na klíč dle vizualizací.
Bude napojen na tepelné čerpadlo. Na střeše domu fotovoltaické panely pro ohřev vody a v interiéru příprava na krb.
Tyto skutečnosti jsou úsporou na provoz domu.
K domu náleží soukromá zahrada o velikosti cca 246 m², ideální pro relaxaci i rodinné aktivity.
Parkování je zajištěno přímo u domu a příjezdová komunikace bude řešena ze zámkové dlažby. Tento areál bude mít svojí vjezdovou bránu
LOKALITA NETŘEBA
Klidné bydlení v zeleni, jen kousek od Kralup nad Vltavou
Obec Netřeba se nachází v okrese Mělník, jen 2 km od města Kralupy nad Vltavou a přibližně 25 minut jízdy autem z Prahy. Jde o ideální místo pro ty, kdo hledají kombinaci klidného venkovského prostředí s výbornou dopravní dostupností a kompletní občanskou vybaveností v dosahu.
V okolí naleznete školy, školky, obchody, restaurace, lékaře i sportoviště, a to především v nedalekých Kralup nad Vltavou, Odolene vodě, kam se snadno dostanete autem, na kole i autobusem. Zároveň si v Netřebě užijete naprostý klid, minimum provozu a krásnou přírodu kolem Labe.
Příroda a volný čas
Lokalita je ideální pro rodiny s dětmi i aktivní páry – v okolí vede řada cyklostezek, můžete si vyrazit na procházku k řece, na houby do lesa nebo si jen užít večerní klid na vlastní zahradě. V dosahu je i koupaliště, sportovní areály, dětská hřiště a možnosti vodních sportů.
Přírodní památka Netřebská slaniska a přírodní rezervace Kopeč v bezprostřední blízkosti.
NAŠE SLUŽBY
FLEXIBILNÍ NABÍDKA POZEMKŮ
Nabízíme široké spektrum pozemků v různých lokalitách. Přizpůsobíme řešení vašim požadavkům, rozpočtu i budoucím plánům.
TÝM KTERÝ SE O VŠE POSTARÁ
Zkušený tým odborníků vás provede celým procesem od prvního kontaktu až po úspěšnou realizaci bez zbytečných starostí.
PRAVIDELNÉ KONZULTACE
Jsme s vámi v neustálém kontaktu. Pravidelně konzultujeme postup, odpovídáme na dotazy a informujeme o každém kroku.
FEROVÉ JEDNÁNÍ
Zakládáme si na transparentnosti, otevřené komunikaci a jasných podmínkách. U nás vždy víte, na čem jste.
Individuální přístup
Každý projekt je jedinečný. Přistupujeme ke klientům individuálně a hledáme řešení na míru jejich potřebám.
JEN TY NEJNOVĚJŠÍ TECHNOLOGIE
Využíváme moderní postupy a technologie, které zajišťují efektivitu, kvalitu a dlouhodobou hodnotu výsledku.
Moderní rodinný dům navržený s důrazem na funkčnost, komfort a kvalitní provedení. Ideální volba pro rodinné bydlení v klidné lokalitě s dostatkem prostoru a soukromí.
- DISPOZICE 4+kk
- Užitná plocha 160m²
- CENA 10 990 000 Kč
- STAV Na prodej
Moderní rodinný dům navržený s důrazem na funkčnost, komfort a kvalitní provedení. Ideální volba pro rodinné bydlení v klidné lokalitě s dostatkem prostoru a soukromí.
- DISPOZICE 4+kk
- Užitná plocha 160m²
- CENA 10 990 000 Kč
- STAV Na prodej
Moderní rodinný dům navržený s důrazem na funkčnost, komfort a kvalitní provedení. Ideální volba pro rodinné bydlení v klidné lokalitě s dostatkem prostoru a soukromí.
- DISPOZICE 4+kk
- Užitná plocha 160m²
- CENA 10 990 000 Kč
- STAV Na prodej
Moderní rodinný dům navržený s důrazem na funkčnost, komfort a kvalitní provedení. Ideální volba pro rodinné bydlení v klidné lokalitě s dostatkem prostoru a soukromí.
- DISPOZICE 4+kk
- Užitná plocha 160m²
- CENA 10 990 000 Kč
- STAV Na prodej
Moderní rodinný dům navržený s důrazem na funkčnost, komfort a kvalitní provedení. Ideální volba pro rodinné bydlení v klidné lokalitě s dostatkem prostoru a soukromí.
- DISPOZICE 4+kk
- Užitná plocha 160m²
- CENA 10 990 000 Kč
- STAV Na prodej
Moderní rodinný dům navržený s důrazem na funkčnost, komfort a kvalitní provedení. Ideální volba pro rodinné bydlení v klidné lokalitě s dostatkem prostoru a soukromí.
- DISPOZICE 4+kk
- Užitná plocha 160m²
- CENA 10 990 000 Kč
- STAV Na prodej
OBCHODY

Zdravotnické služby

DOPRAVA

Vzdělání

OBCHODY
Zdravotnické služby
DOPRAVA
Vzdělání
ZAREZERVUJTE SI JEDEN Z NAŠICH DOMŮ
| NÁZEV | POKOJE | METRY | CENA | AKČNÍ CENA | PLÁNEK |
|---|---|---|---|---|---|
| A1 | 4+kk | 126 m² | 10 990 000 KČ | - | PROHLÉDNOUT |
| A2 | 4+kk | 126 m² | 10 990 000 KČ | - | PROHLÉDNOUT |
| B1 | 4+kk | 126 m² | 10 990 000 KČ | - | PROHLÉDNOUT |
| B2 | 4+kk | 126 m² | 10 990 000 KČ | - | PROHLÉDNOUT |
| C1 | 4+kk | 126 m² | 10 990 000 KČ | - | PROHLÉDNOUT |
| C2 | 4+kk | 126 m² | 10 990 000 KČ | - | PROHLÉDNOUT |